The Proposals

The proposals for High View, Chalfont St Giles are guided by three key principles:

The High View proposals in Chalfont St Giles will help address the area’s urgent housing shortage, delivering 62 new homes, including 50% affordable homes, in a sustainable location close to local services and footpaths. With just 0.75 years of housing land supply, the scheme will make a timely and proportionate contribution to local needs.

Homes will be high quality and energy-efficient, within a landscape-led scheme, with new green spaces, biodiversity enhancements, and improved pedestrian connections. Infrastructure contributions will support local services, ensuring the scheme benefits both new and existing residents.

The development will feel part of Chalfont St Giles, with safe, convenient links to village facilities, nearby footpaths, and the wider rights of way network, encouraging walking, social interaction, and community life.

Emerging Proposals

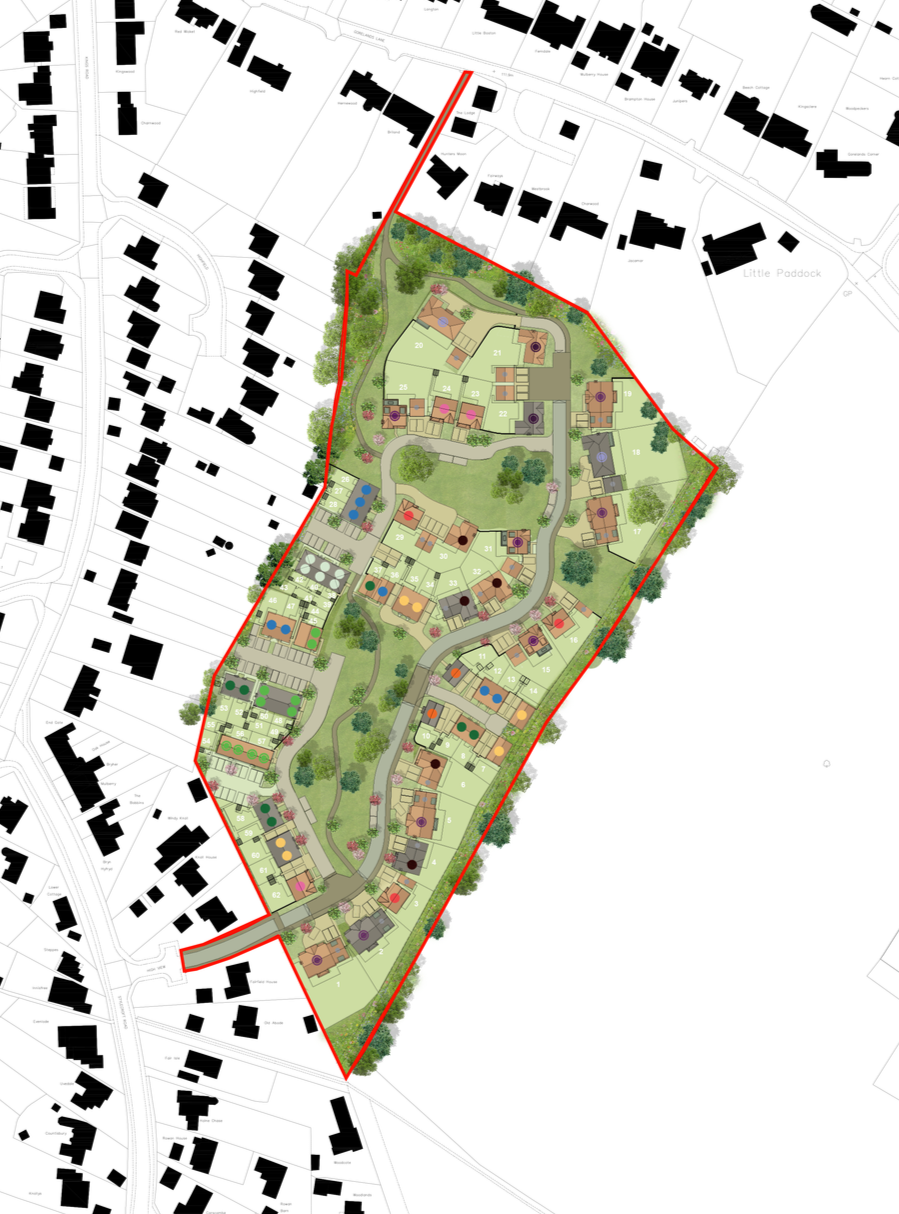
The site layout sets out how the new development at High View could be delivered. It reflects the characteristics of the site, its surroundings, and the opportunity to create a modest, sustainable, and well-integrated extension to Chalfont St Giles. As this is full application, it will include detailed drawings relating to the layout, housing types and mix, and the appearance and height of buildings. The plans will also show details of the access into the site from High View, as well as other information such as drainage and landscaping.

Proposed site layout (click to expand plan and key)

Housing Mix and Affordability

The proposals for High View include 62 new homes, with a mix of sizes and types to suit a wide range of households. The development will include one- to five-bedroom homes, creating a balanced and inclusive community. The layout is designed to be navigable and attractive, with distinct areas shaped by building scale, street design, and landscaping.

Affordable Homes

Fifty percent of the homes will be affordable, in line with national policy. This will include a mix of social rent, affordable rent, and shared ownership. Affordable homes will be fully integrated across the development and built to the same high standards as market homes. The scheme aims to meet local housing needs while providing opportunities for families, young people, and older residents to remain in the area.

Parking

Parking will be provided in line with local standards. Every home will have access to electric vehicle charging infrastructure, and the layout is designed to adapt to future changes in car ownership and mobility.

Landscaping and Biodiversity

A large proportion of the site will be dedicated to green infrastructure. Existing hedgerows and mature trees will be retained where possible to help define spaces and maintain ecological corridors.

The proposals will deliver a minimum 10% Biodiversity Net Gain through on-site and off-site habitat creation, native planting, management of green spaces, and wildlife-friendly design features.

Landscape design (click to expand plan and key) 

Examples of local materials & detailing

Design and Character

The design approach is landscape-led, making use of the site’s natural features to create a distinctive development. Open space will support easy navigation and a sense of place.

New homes reflect the character of Chalfont St Giles, and will meet modern sustainability standards, focusing on energy efficiency, water conservation, thermal comfort, and healthy living. Residents will have access to daylight, ventilation, private outdoor space, and nearby green spaces.